Código: 709
Casa com 1 vaga, 78.99 m² à venda por R$ 395.000,00.
SENAI, Montenegro.
78.99 m²
Área privativa1
Vaga(s)Descrição
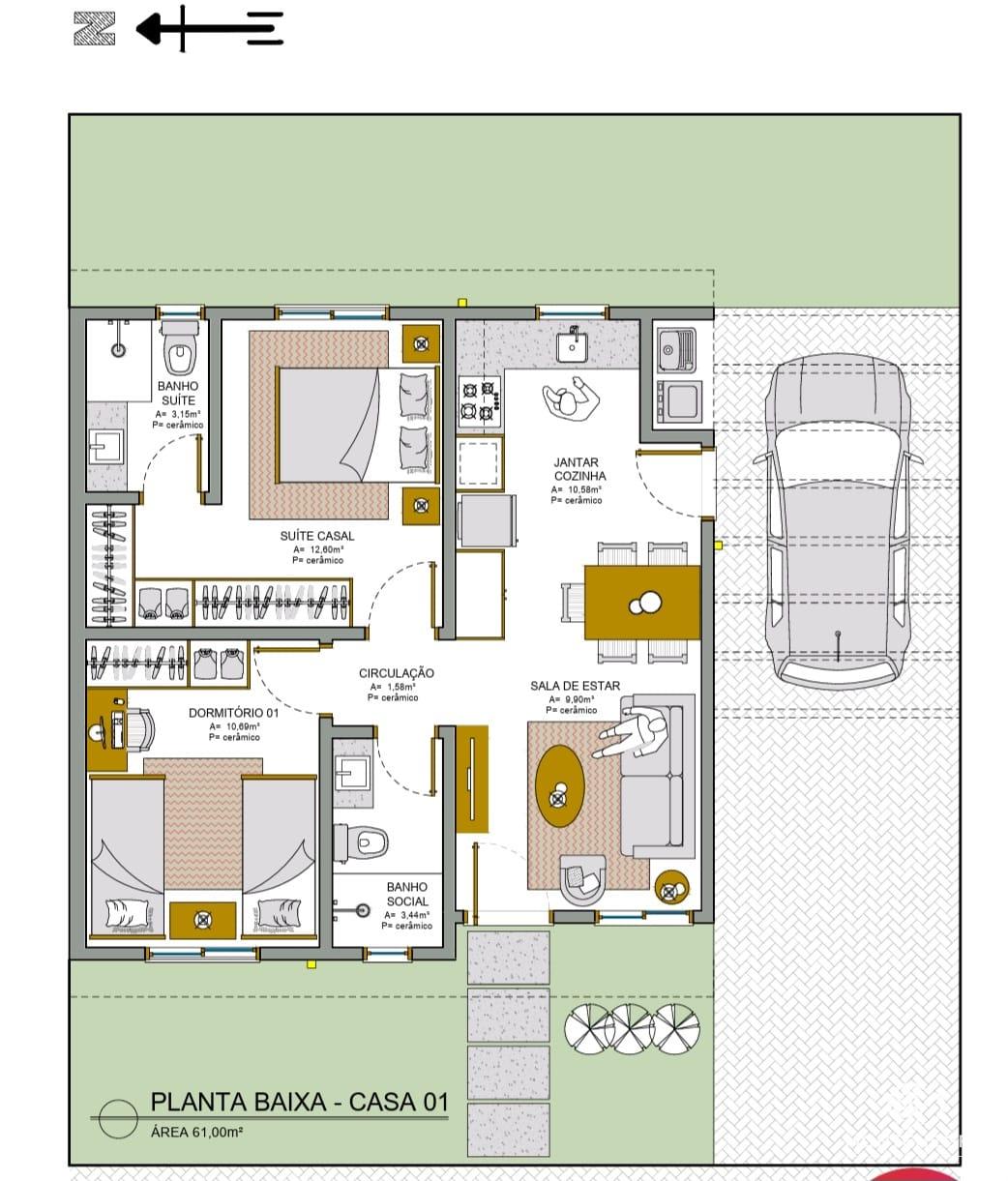
Construção de casa nova no Loteamento San Vicente, próxima ao Fórum, com previsão de entrega para abril de 2026. São 78,99 m² de área construída em um lote de 138,88 m², oferecendo uma confortável suíte, dormitório, banheiro social, sala de estar/jantar integrada à cozinha, área de serviço e garagem para um carro. O imóvel possui pátio fechado nas laterais e fundos, proporcionando privacidade e espaço para lazer.
Aproveite a localização conveniente, em uma região tranquila e de fácil acesso às comodidades do bairro. Não perca a oportunidade de realizar o sonho da casa própria! Agende sua visita ou entre em contato e conheça pessoalmente!
